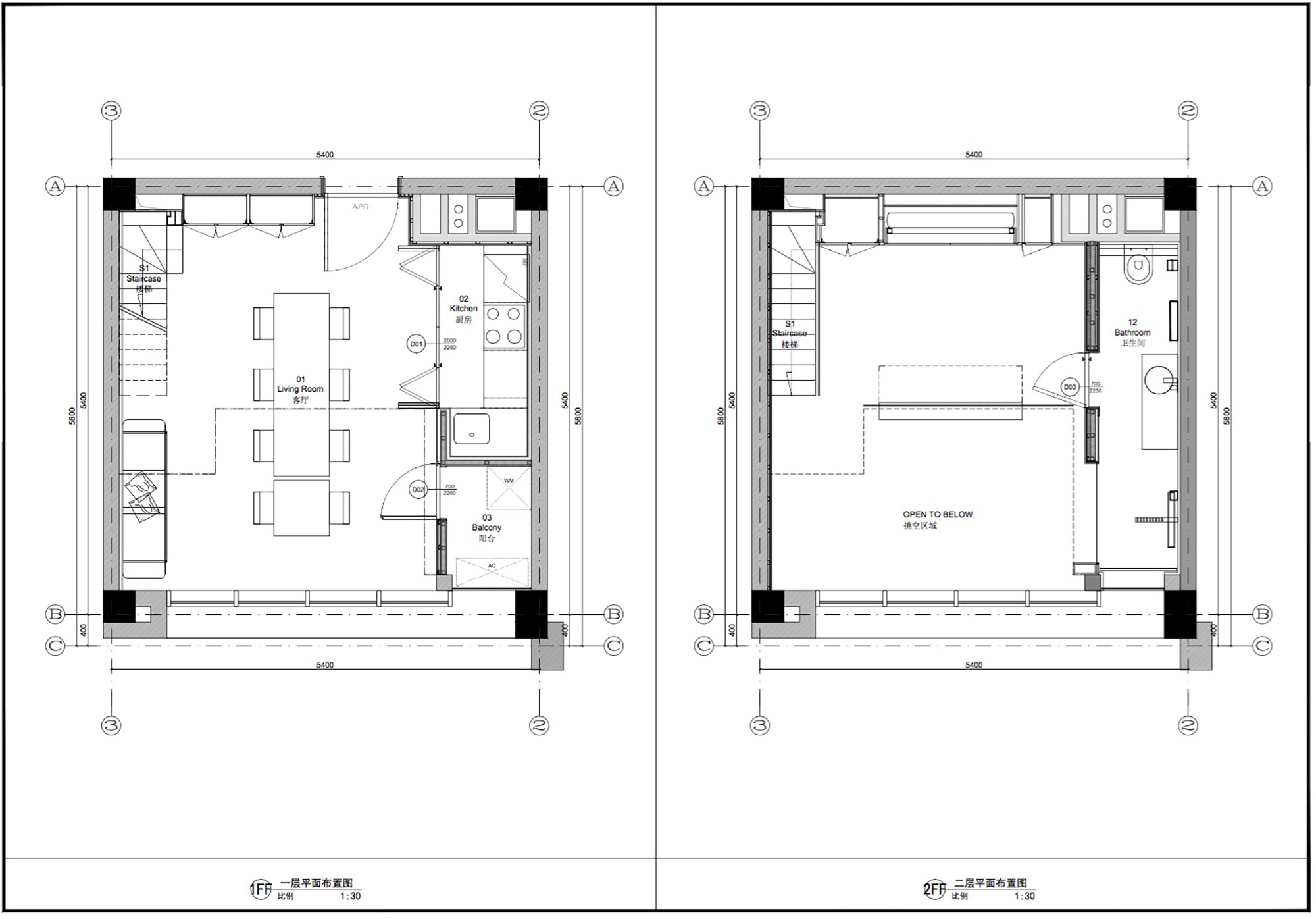
麓湖30㎡loft的灵感来源是一位时尚摄影师,虽说只有30㎡,我们希望打造的非常灵动有趣味性。我们用到了大量的撞色,将橘色和墨绿色这两个颜色贯穿整个空间。撞色,呈现到整个空间当中,其实也是两个矛盾体的组合,因为有些空间想表达的是温馨,其实有的空间想表达的就是矛盾,就像双子座、双鱼座,一个个体当中存在的两种不同性格,它们有时相互斗争有时相互和谐,形成空间当中的趣味性。一楼的餐桌我们选择不同材质,不同造型来组合的长形的餐桌。可灵活的组合随意的搭配,也比较实用。窄窄的楼梯上到二楼是一个开敞式空间。既可以把隐藏式的床放下来休息;或将床收起,也可供日常聚会和聊天。整体的空间我们搭配的比较舒适温馨。
