EN
EN
安 Vlog
安 Vlog
關於
關於
安悅宅
安悅宅
理念
理念
創始人
創始人
合作夥伴
合作夥伴
項目
項目
住宅空間
住宅空間
商业空間
商业空間
联系
联系
羽
羽
Language
中文
EN
日式陶艺
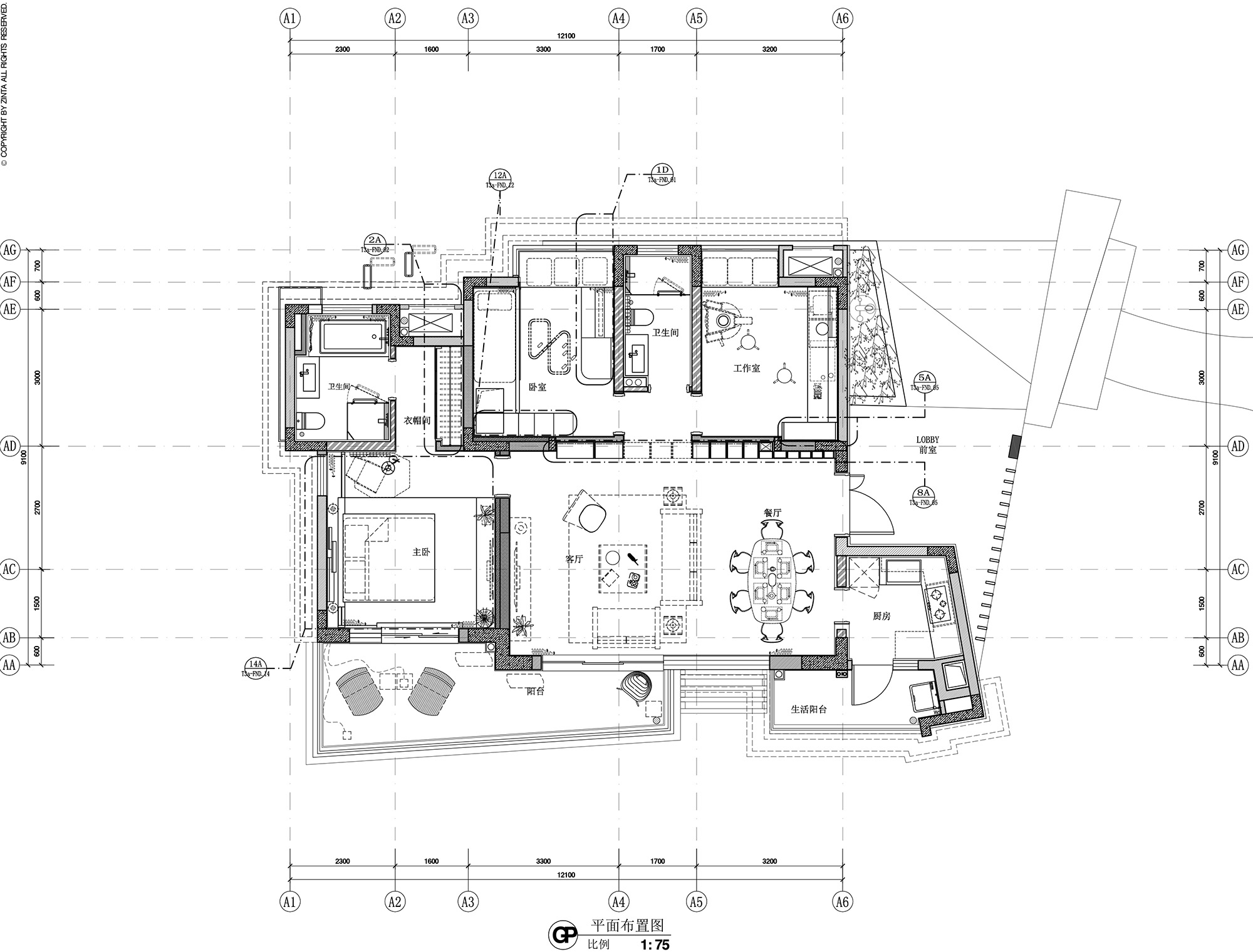
成都麓湖生态城T3-A
Scroll Down
项目地点:
四川成都
项目时间:
2015
年
项目面积:
140
m²
主创人员:
姜辉 史珊珊
項目風貌
項目介紹
东方与哲学作为華夏之子人骨子里流淌着基因,本样板间以“逸”(
east
)为灵感来源。通过丝竹,棉麻,原木等元素打造安静,天然,质朴的雅致空间。
摄影师
Next Project