绿野仙踪

北京居然之家意大利家具买手店
项目地点:
北京
项目时间:
2020
项目面积:
280
主创人员:
姜辉 王婉晴

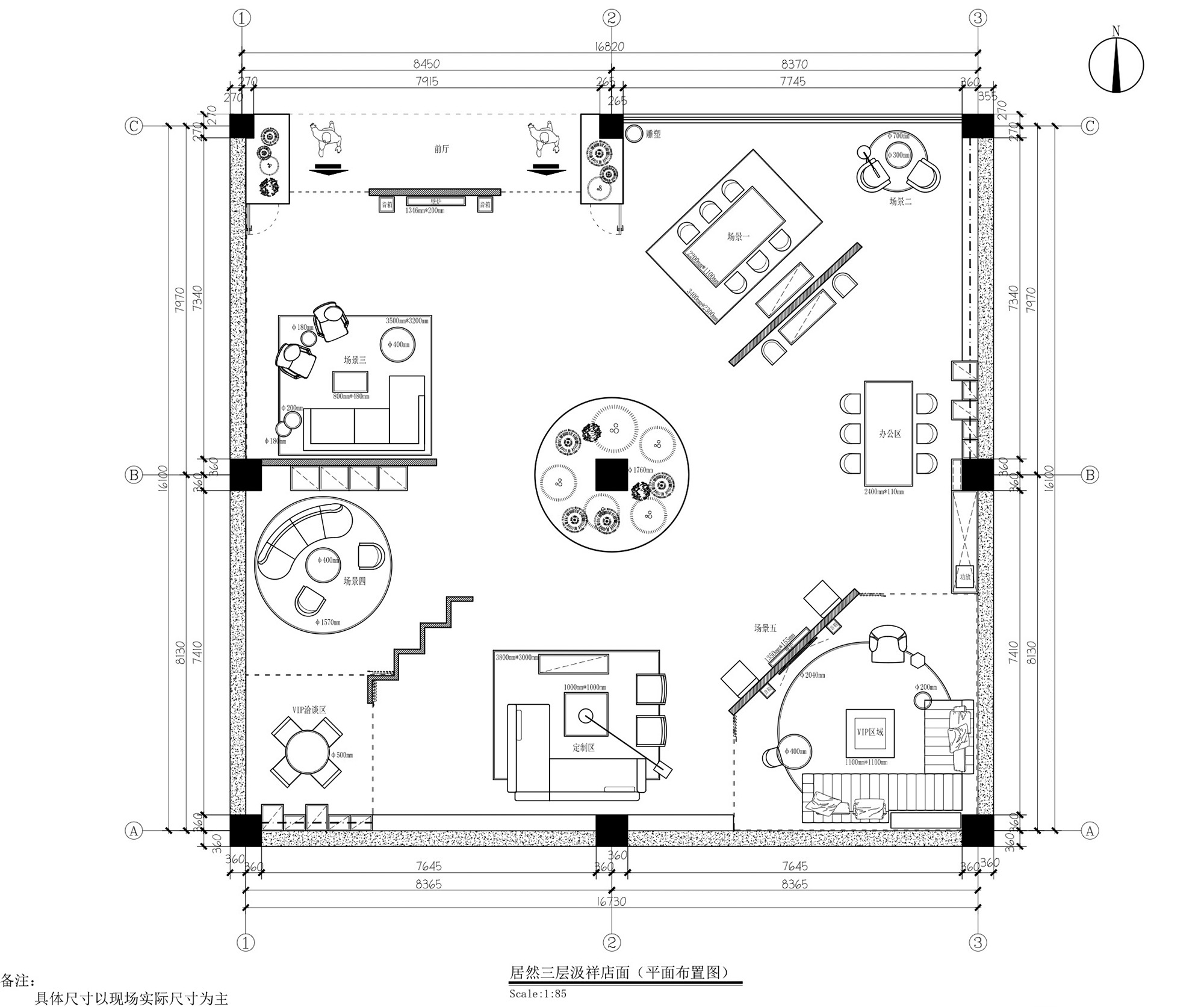
項目風貌

項目介紹

 

自然主义的家具、家居买手店,它有着中心花园、有着土壤颜色的夯土板、有着圆形的中心和放射性的墙体,希望顾客在游走的过程中能够始终保持着“新鲜”的心情,也希望这个景象具有足够的记忆点让顾客“流连忘返”。

居然三层汲祥店面