As Lenovo’s first automated shop, “Time Tunnel” is people-oriented and starts from things themselves. It requires nothing but that sense, concept and utility coexist, such is Lenovo’s level of novelty and practicality in convenience stores. It’s a new trend fit for the times. Therefore, the automated shop not only provides function and convenience, but also represents the connection between the present and the future. This connection needs a medium to communicate, thus the concept of the “time tunnel” was born.
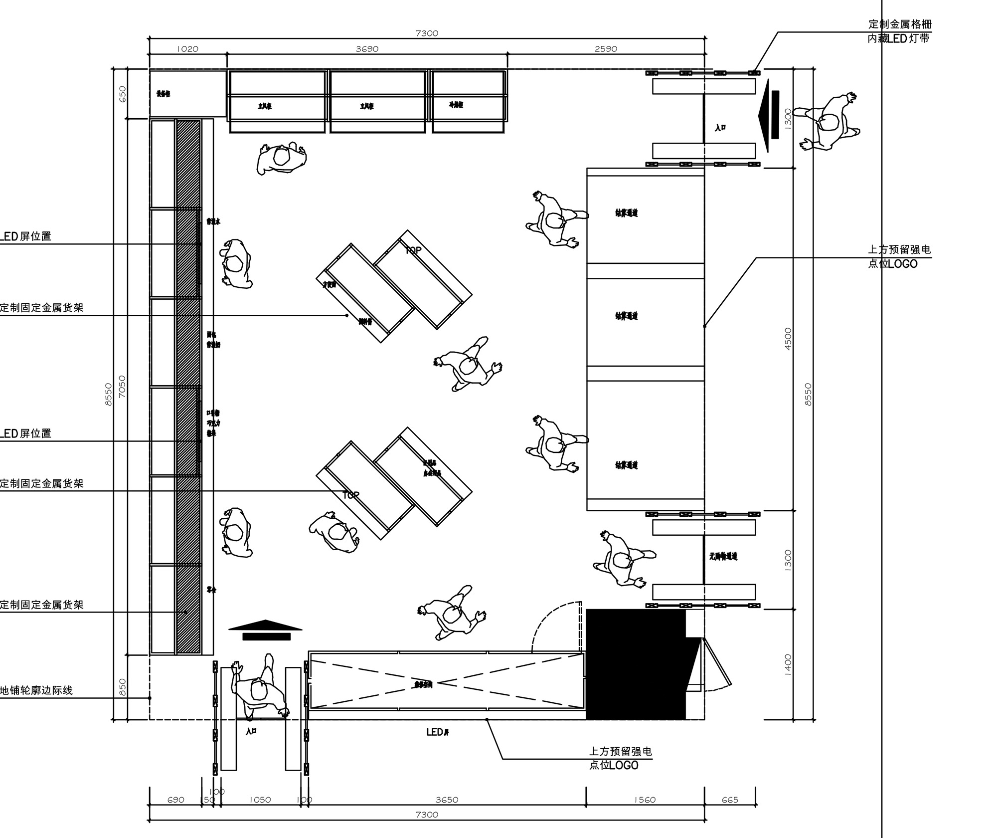
The concept of a time tunnel is reflected in the appearance of the whole automated shop: 1. 3.6 meters high and 1.3 meters deep arch doors are attached with corresponding luminous lines to welcome all who enter the automated shop. This sense of ritual and being transported when walking through reflects the time tunnel concept. 2. The faint spherical light above each container not only lights up the space, but also harbors a sense of the future, like stars in the firmament. 3. The luminous glass in the cashier room echoes the light of the arch door, a concept also augmenting the sense of interest and exploration.
The concept of a time tunnel is reflected in the movement and experience of the automated shop: 1. “The Age of Facial Scan” : from gate entry to checkout room and no-purchase exit, the whole process of both hidden and visible hardware and software brings a sense of the future. 2. The quality and interaction of product selection reflect a sense of autonomy and technology. 3. The gray scales and lines of the whole building, including the lobby where the automated shop is located, are simultaneously catered to and differentiated. As we pass through the time arch in the lobby, there is a sense of satisfaction in the abundance of goods.
The “Time Tunnel” automated shop represents innovation and realization, as well as the development of humanity in the spirit of the times. We hope that all who experience it can take something special from the experience.
